LUX är en ny mötesplats för studenter, forskare och allmänhet i universitetsstaden Lund. Den strukturella grundidén är att samla alla rörelser i byggnaden så att förutsättningar för spontana möten uppstår. Den centrala entréhallen blir byggnadens naturliga vardagsrum. Hit leder entréer och här finns café, läsplatser, forskarbibliotek. Entréhallen får sin speciella karaktär genom att den är placerad mellan gamla Zoologens nationalromantiska tegelfasad och nybyggets öppna, moderna formspråk.
Med prisbelönt röd keramikfasad
Mötesplatsen LUX
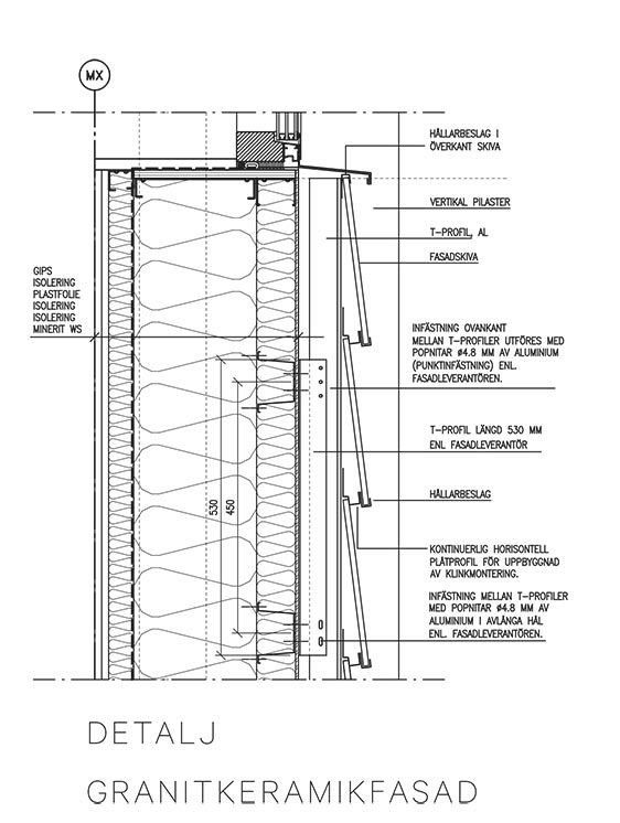
Fasad av röd granitkeramik
Fasaden på den högre delen av nybyggnaden, som rymmer institutionernas arbetsrum, är klädd med skivor av tegelröd granitkeramik. Granitkeramiken kan ses som en tolkning av teglet, med liknande verkan och tillverkningsprocess, och knyter på detta sätt ihop historia och nutid. Den röda kulören ansluter till de befintliga husens röda tegelfasader, men också till de omgivande kvarterens tegelarkitektur. Keramiken har monterats på klink, som en fjällpanel. Fasaden fångar ljuset på ett vackert sätt tack vare denna reliefverkan och ger byggnaden en självständig och stark karaktär. På gavlarna har samma skiva monterats platt, för att skapa variation och betona gavlarnas vertikalitet. Den röda granitkeramiken kontrasterar dessutom på ett eff ektfullt sätt mot bibliotekets utkragande zinkplåtsbeklädda volym, och dess fackverk av ek.
Information
Projekt: LUX
Plats: Lund
Typ: Fasad
Entreprenör: Peab
Beställare: Akademiska Hus
Arkitekt: Mats White & Jakob Petree, Jais Arkitekter
Färdigställt: 2014
Ritningar

Västra ingången.
Ett finstämt möte mellan gammalt och nytt
Om- och tillbyggnaden har inneburit att i en känslig miljö, gränsande till den kulturhistoriska värdefulla UB-parken och Universitetsbiblioteket, tillgodose ett omfattande lokalprogram. Genom strategiska ingrepp och nybyggnaden har en ny inre ordning skapats, där gammalt och nytt formar en spännande helhet. Genom nya hål, lätta bryggor och trappor vävs de olika delarna samman. De befintliga tegelbyggnaderna är kraftfulla och vackra. Vi har med keramikfasaderna gjort en modern tolkning av den äldre tegelarkitekturen, för att ge nybyggnaden och vår tids arkitektur samma värde, som bidragit till att lyfta de gamla husen in i nutiden.
Stora Kakelpriset 2015
För ett samtida uttryck genom precist utförda fasader i granitkeramik.
Juryns motivering: Plattorna på tillbyggnaden förhåller sig på samma gång fritt som traditionsenligt till de historiska tegelmiljöerna. Tillbyggnaden förenar flera generationers universitetsbyggnader på ett skickligt sätt, där de specifika och sociala delarna mot gaturummen har getts en öppen och transparent utformning, och de mer generella kunskapsmiljöerna i högre byggnader ligger tillbakadragna och ansluter till tegelarkitekturen med ett samtida uttryck genom precist utförda fasader i granitkeramik.
Välkommen till vår värld av kakel
Grunden för vår verksamhet är import av kakel/klinker från ledande tillverkare världen över, med tonvikt på Europa. Vårt sortiment väljer vi med stor omsorg. Oavsett vilket uttryck man söker, trendigt, klassiskt eller helt egen stil, så är vår ambition att kunna tillgodose detta. Tillsammans med våra leverantörer samverkar vi regelbundet för att utveckla nya produkter som passar vår ”nordiska smak”.